Tienda Perez Ponce

Año: 2024 | Ubicación: Mérida, Yucatán

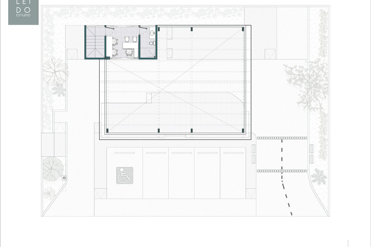
Proyecto arquitectónico para una tienda comercial tipo Drive Thru, desarrollado en colaboración con los socios y el equipo de diseño de marca, con el objetivo de crear un espacio que respondiera de manera óptima a las necesidades y experiencias de los usuarios.
El diseño integra de forma eficiente un área de piso de venta y dos carriles vehiculares que atraviesan el interior de la tienda, permitiendo a los clientes ser atendidos cómodamente desde su automóvil.

DIMENSIONES:
Terreno: 574.00 m²
Construcción: 168.61 m²

03 TIENDA PEREZ PONCE
02 TIENDA PEREZ PONCE
01 TIENDA PEREZ PONCE
04 TIENDA PEREZ PONCE – PORTADA
05 TIENDA PEREZ PONCE
06 TIENDA PEREZ PONCE
07 TIENDA PEREZ PONCE
08 TIENDA PEREZ PONCE -PLANO PLANTA BAJA
09 TIENDA PEREZ PONCE -PLANO PLANTA ALTA