Casa 173
Año: 2025 | Ubicación: Mérida, Yucatán.
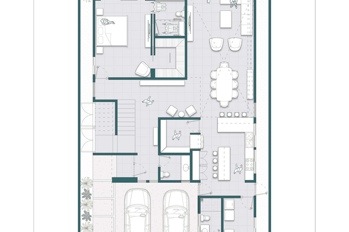
Casa 173 es un proyecto residencial de dos niveles desarrollado en un terreno de 460 m², ubicadoen la ciudad de Mérida, Yucatán. La propuesta se concibe a partir de espacios amplios y luminosos, donde la doble altura se convierte en el elemento articulador de la vida interior.
En planta baja, las áreas sociales integran sala y comedor a doble altura, conectados con unacocina abierta que favorece la convivencia cotidiana. Estos espacios se extienden hacia una terrazatechada y el jardín posterior, donde la piscina y el área de asoleadero refuerzan la relacióninterior–exterior. En este nivel se localiza también la recámara principal, con vestidor, baño y salida directa a la terraza, así como el área de servicio y la cochera techada para dos autos.
La planta alta alberga un vestíbulo que funciona como sala de TV con vista a la doble altura,además de dos recámaras secundarias con baño y vestidor, ambas con acceso a terrazas que miranhacia el frente y la parte posterior del terreno.
Casa 173 propone una experiencia residencial contemporánea, donde la amplitud, la luz natural y la conexión con el exterior definen el carácter del proyecto.
DIMENSIONES:
Construcción: 360.00 m²

