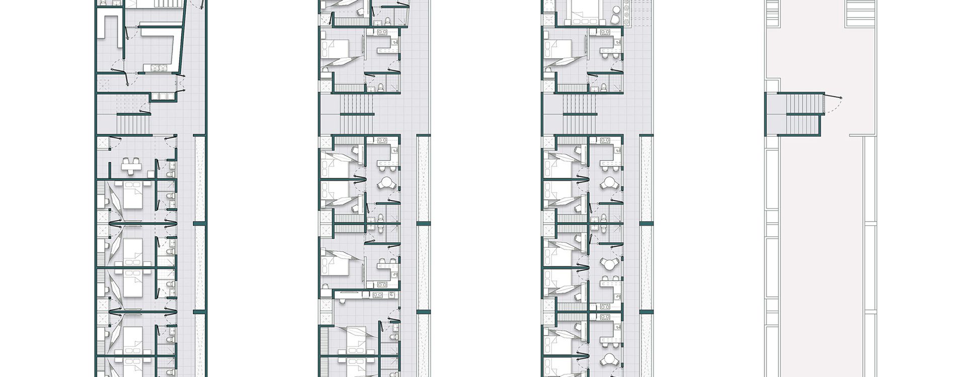
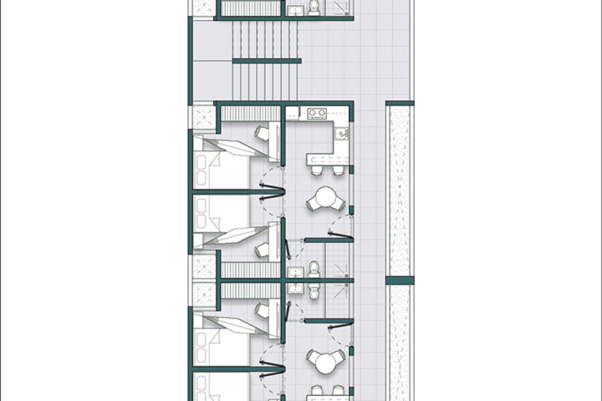
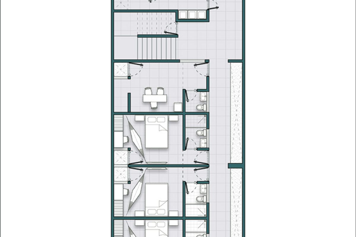
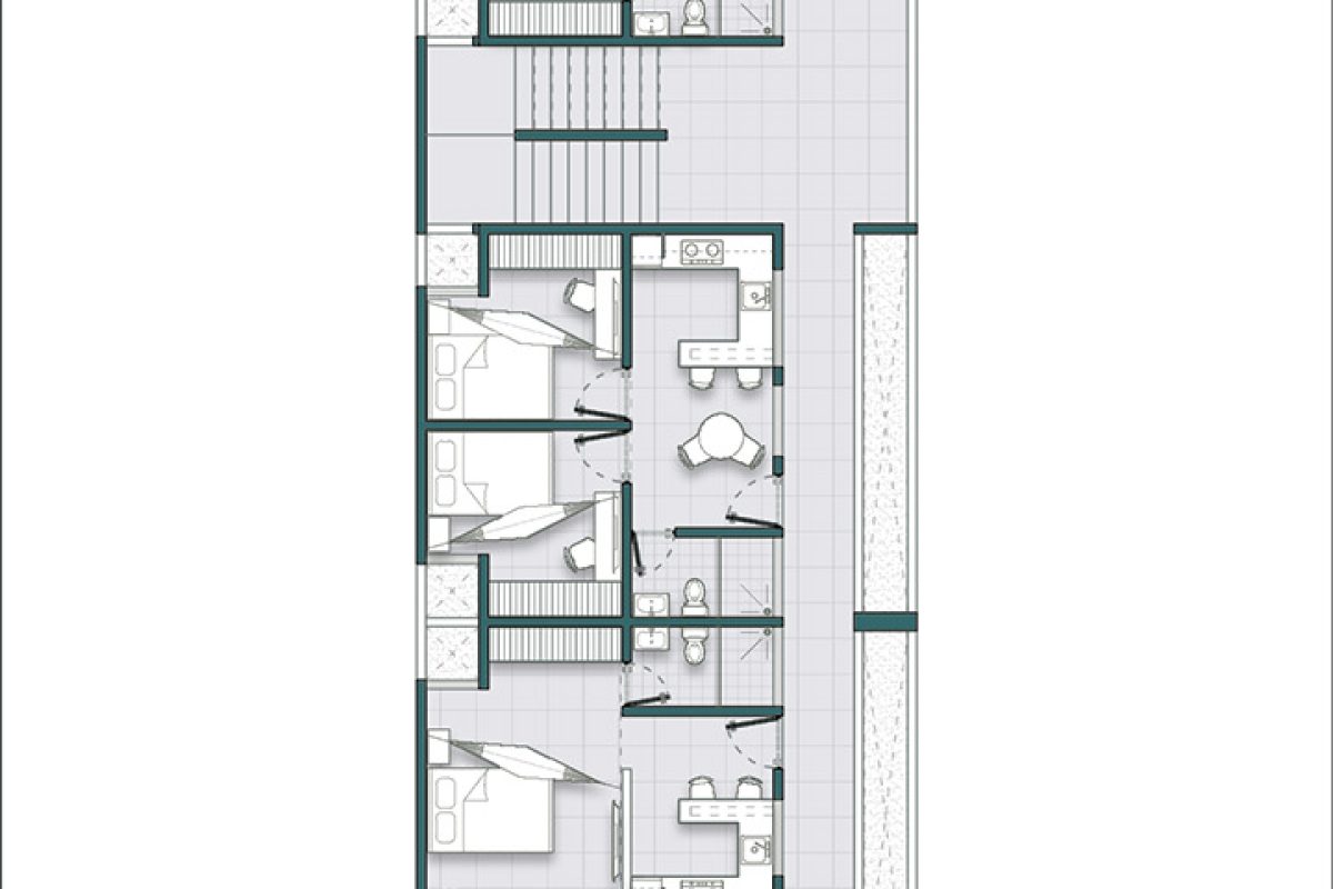
Edificio de usos mixtos en Mérida, Yucatán, que integra áreas comerciales y residenciales en un terreno compacto. En planta baja, cuenta con local comercial y lavandería común. Dispone de tres niveles con distintas tipologías de departamentos:
A) Smart Hotel: Compactos y funcionales, ideales para estancias cortas.
B) Estudio: Espacios abiertos para jóvenes profesionales o estudiantes.
C) 2 Habitaciones: Para parejas o familias pequeñas.
El tercer nivel incluye un pent-house con vistas privilegiadas y acabados de alta calidad. Diseño contemporáneo con líneas limpias y materiales modernos, priorizando estética, funcionalidad y sostenibilidad.
DIMENSIONES:
Terreno: 375.50 m²
Construcción: 875.00 m²
Enviar mensaje