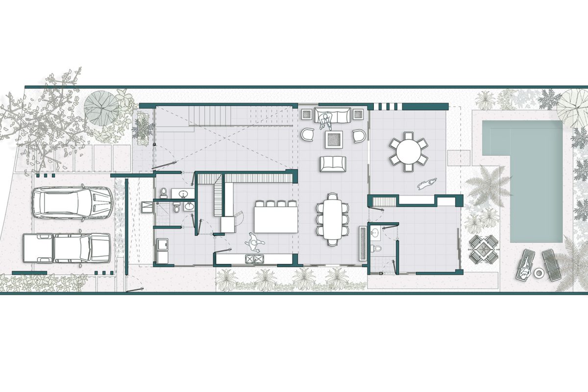
Casa CHT_115 es una residencia contemporánea en Mérida, diseñada para ofrecer funcionalidad, elegancia y confort. La planta baja presenta una estancia a doble altura que aporta amplitud, complementada por escaleras abiertas que añaden ligereza. El diseño incluye sala, comedor y cocina abierta con isla central, ideales para convivencias familiares, y un estudio con baño completo que otorga versatilidad. En el exterior, la terraza se conecta con una alberca creando un espacio perfecto para el descanso. La planta alta alberga las áreas privadas que se interconectan con una estancia de TV.
DIMENSIONES:
Terreno: 405.00 m²
Construcción: 370.00 m²
Enviar mensaje